|
Straight FAQ's on FEMA Surplus Civil Defense Meters with Retail and Wholesale Sources Listed! |
|
for Potassium Iodide (KI) tablets, Potasium Iodate (KIO3) pills, and all forms of radiation protection iodine! |
| ||||||
Appendix A.6 |
|


PROTECTION PROVIDED
Against fallout radiation: Protection Factor 200 (PF 200) if the earth-filled cribs are built to the full width of 3 ft, as illustrated in Fig. A.6 at the end of these instructions. (A person in the open outside this shelter would receive about 200 times as much fallout radiation as he would if inside.) If earth is mounded to the top of the walls and 3 ft deep over the roof, the protection factor can be raised to PF 500 or better. See the accompanying drawing at the end of Appendix A.6.
Against blast: Better protection than most homes. Without blast doors, occupants could be injured although probably not fatally at lower overpressure ranges than those that would destroy this shelter.
Against fire: Poor, if the shelter is built as illustrated. The cloth and outer poles would be unprotected from thermal pulse and other possible sources of intense heat. However, if earth is mounded around the walls so as to cover all exposed cloth and wood, good fire protection would be provided.
WHERE PRACTICAL
The crib-walled shelter is practical in many wooded areas and whenever enough poles are available, or in locations where belowground expedient shelters are impractical because the water table or rock is too close to the surface for a covered- trench shelter.
FOR WHOM PRACTICAL
For a family or group with three or more members able to work very hard for most of 48 hours. An unskilled family with an ax or saw and materials found in most American homes can build this shelter. No nails are required. (Groups with the nails, tools, skill, and the number of workers required to build a Ridgepole Shelter are advised to do so; a Crib-Walled Shelter requires almost twice the total length of poles and more work to provide shelter for a given number of persons.)
CAPACITY
The shelter illustrated in Fig. 6. 1 is the minimum length for 5 persons. For each additional person, add 1-1/2 ft to the length of the room. (If more than about 12 persons are to be sheltered, build 2 or more separate shelters.)
BUILDING INSTRUCTIONS
1. Before beginning work, study the drawing and read ALL of the following instructions.
2. Divide the work. CHECK OFF EACH STEP WHEN COMPLETED.
3. By the time the shelter is finished, plan to have completed a ventilating pump (a KAP 20 in. wide and 26 in. high, essential for this shelter except in cool weather) and the storage of at least 15 gallons of water per occupant. (See Appendix B and Chapter 8.)
4. Start to assemble materials and tools.
A. Essential Materials and Tools
° Poles. (Fresh-cut, green poles are best; sound, untreated poles are satisfactory.) For the illustrated 5-person shelter, the required poles are listed on the following page.
Book Page: 188
|
Use |
Pole Length |
Minimum Diameter of Small End |
Number of Poles Required |
Width When All Are Laid on the Ground a |
|
Sides of longest crib |
12-1/2 ft |
3 in. |
7 ft |
|
|
Sides of middle-sized crib |
10 ft |
3 in. |
7 ft |
|
|
Sides of shortest crib |
7 ft |
3 in. |
7 ft |
|
|
Ends of all cribs |
3-1/2 ft |
3 in. |
21 ft |
|
|
Vertical poles at the corners of all cribs |
3-1/2 ft |
2 in. |
56 |
|
|
Main roof |
9 ft |
3-1/2 in. |
12 ft |
|
|
Entryway roofs |
5 ft. |
2-1/2 in. |
22 ft |
a This width is the distance measured across a single layer laid on the ground side by side and touching, with large ends of poles when a sufficient number of them are and small ends alternating so as to cover a rectangular area.
° A saw (preferably a bow saw with an extra blade, or a crosscut saw) and/ or an ax for cutting green poles.
° Containers for storing 15 gallons of water per occupant. (See Chapter 8.)
° A shovel (one for each two workers is desirable).
° A pick (if the ground is very hard).
° Two to five large cans, buckets, and/ or pots with bail handles, in which to carry earth and to store water or wastes later.
° A knife.
° A minimum of 300 ft of wire at least as strong as clothesline wire. Second choice would be 300 ft of rope, or (third choice) 8 double-bed sheets that could be torn into 1-ft wide strips and twisted slightly to serve as rope. For each additional person beyond 5, supply 20 ft of wire or rope or half a double- bed sheet.
° Rainproof roofing materials at least 2 square yards per person. Such materials as plastic film, shower curtains, plastic tablecloths or plastic mattress covers can be used. These materials are essential for prolonged shelter occupancy in rainy, cold weather.
° Fifteen double-bed sheets (or equal square-yardage of other strong cloth or plastic).
° Materials for building a ventilating pump, a KAP 20 inches wide and 30 in. high. (See Appendix B.)
B. Useful Materials and Tools
° Additional saws and shovels, chain saw, pick-mattock, hammer, hatchet.
° Kerosene, turpentine, or oil to keep a hand-saw from sticking in gummy wood.
° A file.
° Two additional double-bed sheets per person, or equivalent square-yardage of other equally strong fabric or plastic.
° A measuring tape, yardstick, or ruler.
° Old newspapers (about 15 pounds).
° A total of 30 square yards of rainproofing materials for the illustrated 5-person shelter, and 3 square yards for each additional person to be sheltered. (Even thin plastic will serve to make a rainproof "buried roof.")
5. To save time and work, SHARPEN ALL TOOLS AND KEEP THEM SHARP.
6. Wear gloves from the start. Even tough hands can blister and become painful and infected after hours of digging and chopping.
7. Select a shelter location where there is little or no chance of the ground being covered with water by a hard rain.
Book Page: 189
8. If the building site is near the edge of a woods, pick a site at least 40 ft from the nearest trees to avoid roots.
9. Clear off grass, weeds, etc., from the area where you plan to build the shelter this also will help to avoid chiggers or ticks. Do not remove any earth.
10. Stake out the entire shelter, locating the 6 required cribs. BE SURE TO MAKE THE INSIDE LENGTH OF THE MAIN ROOM EQUAL TO THE NUMBER OF PERSONS TO BE SHELTERED MULTIPLIED BY 1-1/2 FT. The illustrated shelter is sized for 5 persons, and the poles listed are those required for this 5-person shelter.
11. While some persons are staking out the shelter, others should be cutting green poles and hauling them to the site. Cut poles with tops no smaller than the diameters specified. (Note: the specified diameters do not include bark.)
12. Select poles with small-end diameters no more than 50% larger than the specified minimum diameters, to make handling of the long wall and roof poles easier.
13. Sort the poles by length and diameter and lay all poles of each size together, near the excavation.
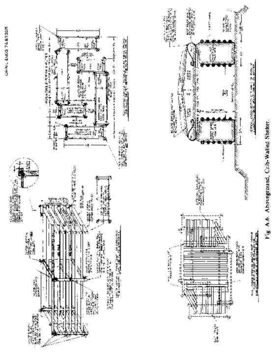
14. Use larger trees and poles, up to 6 in. in diameter, to make the 3-1/2-ft-long end-poles of the cribs (Fig. A.6). Do not use poles with small-end diameters of less than 3 in. for the side-wall poles of the cribs. For vertical brace-poles, use poles with diameters of at least 2 in., cut off at the height of the upper side of the uppermost horizontal poles against which they are tied.
15. Be sure to cut off all limbs so that the poles are quite smooth. Usually it is easier to drag smoothed poles to the building site before cutting them into the required lengths. Pull them by the small, lighter ends.
16. Determine if there are enough long poles to make the side-poles of the two cribs forming the sides of the shelter room without splicing two shorter poles together. If the shelter is being built for more than 7 persons, it will require side poles that are longer than 15-1/2 ft. Therefore, if a shelter for more than 7 persons is being built, it would be best to use 2 cribs placed end-to-end on each side of the shelter room, instead of a single crib as illustrated by Fig. A.6.
17. Place the lowermost four poles of each of the cribs in their final positions, so that all the bases of the crib-walls are in position on the ground. Use the thicker, heavier poles at and near the bottom of each crib. BE SURE THE ROOM IS LONG ENOUGH TO PROVIDE 1-1/2 FT OF ROOM LENGTH FOR EACH PERSON TO BE SHELTERED.
18. To build each crib:
(1) Place two 3-1/2-ft end-poles on the ground. Put two of the side-poles on top of the two end-poles so that the ends of all four poles extend 3 in. (no more) beyond where they cross. The thicker poles should be used first to add stability.
(2) Stack additional pairs of end-poles and side- poles to form the crib, keeping each wall of the crib vertical, until the tops of the uppermost side-poles are at least 42 in. above the ground. To keep the uppermost poles of the crib about level while the crib is being raised, alternate the large ends and small ends of poles.
(3) Place a pair of small, vertical brace-poles in each of the four corners of the crib. The tops of the vertical brace-poles should be no higher above the ground than the upper sides of the crib's uppermost horizontal poles.
(4) Tie each pair of vertical brace-poles together tightly at bottom, middle, and top. For tying, use 3-ft lengths of strong wire, rope, or slightly twisted, foot-wide strips of cloth at least as strong as cotton bed sheeting. Square knots with back-up overhand knots are best, but three overhand knots one on top oft he other will hold.
(5) If the crib is more than 8 ft long, place an additional pair of vertical brace-poles, with one in position at the outside center of each long crib-wall. Tie this pair of vertical brace- poles together permanently just above the ground, but not yet in the middle or near the top of the crib. Temporarily tie each of these center vertical brace-poles to the uppermost side-pole of the wall it touches.
(6) Line the crib with cloth or plastic film, making sure that several inches of the lining hangs over the uppermost poles. So that the lining will not be pulled down when the crib is being filled with earth, tie the upper edge of the lining to the uppermost wall pole about every 2 ft. First cut a small hole through which to thread a tie-string or a 2-in.-wide tie-strip of cloth. (If plenty of cloth and/ or plastic is available for lining the cribs, secure the lining by simply wrapping a greater width of the upper edge of the lining around the uppermost crib wall-pole.)
Book Page: 190


(7) Permanently tie together the pair of vertical center brace-poles, using horizontal ties at their centers and just below the uppermost horizontal wall-poles of the crib. Use the strongest material you have for these horizontal ties across the center of the crib.
(8) Excavate earth 10 ft or so beyond the outer sides of the cribs. To save work, carry it in buckets and dump it inside the cribs. (Two children can carry a heavy bucket of earth by running a strong, 4-ft stick through the bail or handle of the bucket and tying the bail to the center of the stick before lifting.) Save earth closer to the cribs to put on the roof.
(9) Fill the lined crib with earth from which almost all grass, roots, and the like have been removed. Avoid placing hard lumps of earth in contact with the lining. Fill the crib so that the surface of the earth inside it is about 4 in. above the upper sides of the uppermost horizontal poles.
19. Line the narrow spaces between adjacent cribs with cloth or plastic; then fill these spaces with earth a little at a time, tamping repeatedly so as to avoid leaving air spaces.
20. Place the 9-ft roof poles over the main room. (If poles are unavailable and boards 1-1/2 in. thick are available, use two thicknesses of boards.) Use the strongest roof poles (or double-thickness boards nailed together) nearest the entryways. Then put shorter, 5- or 6-ft poles or boards over the entryways.
21 To keep earth from falling through the cracks between the roof poles, put sticks in the larger cracks and cover the roof with two or more thicknesses of cloth, plastic, or other material. Newspapers will do, if better materials are lacking.
22. Put earth on the roof to the depths shown for the illustrated "buried roof." Be sure to slope all sides and smooth this gently mounded earth surface so that the buried roof will shed water.
23. So that the earth cover near the outer edges of the roof will be a full 2 ft thick, make the earth cover slope steeply near the edges. Steep earth slopes can be made and kept stable by using large lumps of turf to make a steep bank, or by using earth-filled "rolls" of cloth or other material along the edges of a roof.
24. Put in place the waterproof material of the buried roof.
25. Pile on the rest of the earth cover, as illustrated, to at least a full 2-ft thickness.
26. Smooth the surface of the earth cover, including the sides, so that rain will run off. Do not walk on the finished roof.
27. To prevent rainwater on the ground outside from running into the entryways, make mounds of packed earth about 4 in. high across the entryway floors. Make the mounds about 2 ft from the outer ends of the floors. Dig a shallow drainage ditch completely around the shelter.
28. Unless the weather is cold, install your shelter ventilating KAP in the entry into which you can feel air moving naturally. (If short of time or materials, make a small Directional Fan.)
29. To prevent fallout or rain from falling onto the floor of the outer entryways, place small awnings (not illustrated) over the openings.
30. If time and energy are available, mound earth all around the shelter. Doing so will reduce fire hazards by covering flammable materials; it also will increase fallout protection.
31. Fill all available water containers, including pits which have been dug and lined with plastic, then roofed with available materials. If possible, disinfect all water stored in expedient containers, using one scant teaspoon of a chlorine bleach, such as Clorox, for each 10 gallons of water. Even if only muddy water is available, store it. If you do not have a disinfectant, it may be possible to boil water when needed.
32. Put all of your emergency tools inside your shelter.
33. As timeand materials permit, continue to improve your chances of surviving by doing as many of the following things as possible:
(1) Make a homemade fallout meter, as described in Appendix C, and expedient lights. (Prudent people will have made these extremely useful items well ahead of time.)
(2) Make and hang expedient bedsheet-hammocks.
(3) Install screens or mosquito netting over the two openings, if mosquitoes or flies are a problem. Remember, however, that screen or netting reduces the air flow through a shelter even when the air is pumped through with a KAP.
(4) Dig a stand-up hole near the far end of the shelter. Make the hole about 15 in. in diameter and deep enough to permit the tallest of the shelter occupants to stand erect occasionally.
Book Page: 191
Fig. A.6. Aboveground, Crib-Walled Shelter (ORNL-DWG 74-8130R)

Book Page: 193
| |
|
for Potassium Iodide (KI) tablets, Potasium Iodate (KIO3) pills, and all forms of radiation protection iodine! |
|
Straight FAQ's on FEMA Surplus Civil Defense Meters with Retail and Wholesale Sources Listed! |